Casa semindipendente in vendita

San Giovanni In Persiceto, Via Samoggia
€ 188.000
8 locali 8 locali
260 Mq 260 Mq
2 bagni 2 bagni

Casa semindipendente in vendita

San Giovanni In Persiceto, Via Samoggia

Descrizione annuncio

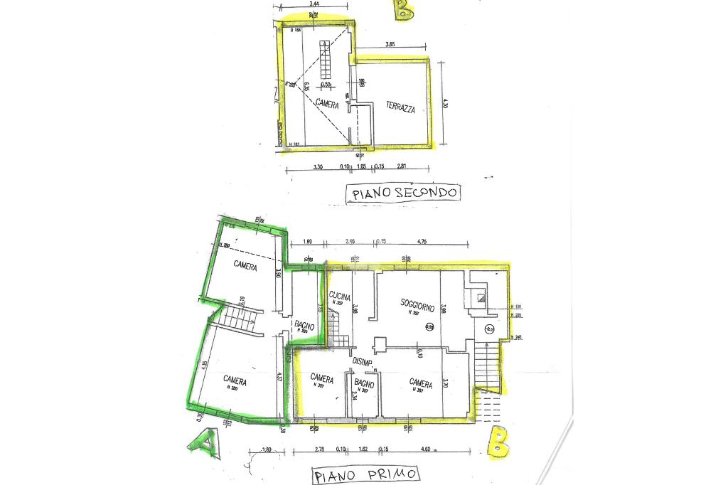
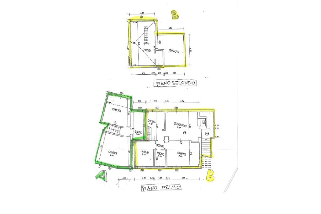
SAN GIOVANNI IN PERSICETO - VIA SAMOGGIA 34

Porzione di casa con due appartamenti indipendenti e splendida vista sulla campagna

In posizione tranquilla e panoramica, proponiamo porzione di casa composta da due appartamenti entrambi con ingresso indipendente, ideale per soluzione genitori-figli, investimento o struttura ricettiva.

L’abitazione principale si sviluppa su due livelli:

Piano terra composto da un accogliente soggiorno, cucina abitabile con accesso diretto a piccolo giardino pavimentato privato, perfetto per pranzi all’aperto, con splendido affaccio sulla campagna e infine ampia camera matrimoniale. Al piano superiore troviamo il bagno finestrato e due spaziose camere matrimoniali.

La seconda abitazione (allo stato grezzo) anch’ essa con ingresso indipendente, si sviluppa al primo e secondo piano ed offre ampie possibilità di personalizzazione.

Primo piano troviamo la zona giorno con camino, cucina separata, due camere matrimoniali ed il bagno.

Secondo piano invece troviamo un ampio vano versatile, ideale come studio, ulteriore zona giorno o camera con predisposizione per secondo bagno e accesso su un splendido terrazzo panoramico.

Perfetta per chi desidera ultimare gli spazi secondo il proprio gusto e le proprie esigenze.

Completano la proprietà due ampi magazzini, ideali come autorimesse o spazi deposito.

Si precisa che l'immobile non è attualmente abitabile e necessità di importanti interventi di ristrutturazione e il giardino che circonda l'immobile non è di proprietà.

Contattaci per maggiori informazioni o per fissare una visita allo 0510366602!

Mostra tutto

Nelle vicinanze

Trasporto pubblico Trasporto pubblico
Casa Grazia
Casa Grazia
1,7 Km
Villa Bianca
Villa Bianca
1,8 Km
Farmacia Farmacia
Marconi
2,5 Km
Negozi Negozi
MARGHERITA CONAD Sala Bolognese
2,5 Km
Ristoranti Ristoranti
La Piccola Fattoria
2,9 Km
Mostra tutto

Caratteristiche

Rif.:
61184376
Piano:
1 di 2 (Piano su più livelli)
Box:
1
Terrazzi:
1
Camere da letto:
6
Arredamento:
Assente
Mostra tutto
Prezzo Prezzo
€ 188.000
Rata mutuo Rata mutuo
€ 893 / mese
Spese annue Spese annue
€ 0
Proponi il tuo prezzoProponi il tuo prezzo

Classe Energetica

G
G
G
G
G
G
G
G
G
EP globale non rinnovabile:
0.01 kW h/m² anno
EP globale rinnovabile:
0.01 kW h/m² anno
Anno di costruzione:
1967
Riscaldamento:
Autonomo
Tipo impianto:
A radiatori
Tipo alimentazione:
Metano

Ti interessa visionare l'immobile?

Fissa un appuntamento  Fissa un appuntamento

Richiedi informazioni

Clicca su Leggi per aprire l'informativa
* Questi campi sono obbligatori

Calcola il tuo mutuo

Semplice e senza impegno
Anticipo

( % )
Mutuo

( % )

pochi semplici passi

inserisci i tuoi dati
Questionario completato
Grazie per aver richiesto un appuntamento senza impegno con un nostro Consulente del Credito e Assicurativo.

Hai inserito correttamente tutti i dati necessari e a breve riceverai una e-mail con un link da convalidare per inviare i tuoi dati.
Affiliato
Tecnosangio Srl
Corso Italia, 86 40017 San Giovanni In Persiceto (BO)

Il nostro staff


  • Luca Zagnoni
    Affiliato

  • Enrico Chierici
    Collaboratore

  • Rossana Giardina
    Coordinatrice
Corso Italia, 86 40017 San Giovanni In Persiceto (BO)
Zona: San Giovanni in Persiceto-Budrie-Decima-S.Agata-Crevalcore
Mostra su mappa
Orari: Lunedì - Venerdì 09.00-13.00 / 15.00-20.00 Sabato 09.00/13.00
Affiliato
Tecnosangio Srl
Corso Italia, 86 40017 San Giovanni In Persiceto (BO)

2026 Tecnocasa Franchising S.p.A. - P. IVA 08365160152 - Via Monte Bianco 60/A 20089 Rozzano (MI). Ogni agenzia ha un proprio titolare ed è autonoma. Privacy policy | Policy utilizzo | Cookie policy