Casa semindipendente in vendita

San Giovanni In Persiceto, Via Castagnolo - Castagnolo
€ 439.000
4 locali 4 locali
246 Mq 246 Mq
2 bagni 2 bagni

Casa semindipendente in vendita

San Giovanni In Persiceto, Via Castagnolo - Castagnolo

Descrizione annuncio

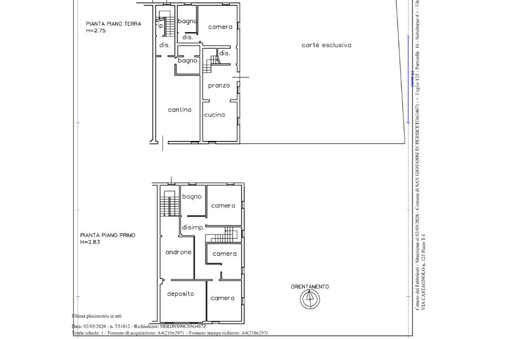
SAN GIOVANNI IN PERSICETO - VIA CASTAGNOLO 125

Proponiamo in vendita casa semindipendente situata in una tranquilla zona di campagna, ideale per chi cerca privacy e serenità senza rinunciare alla comodità dei servizi nelle vicinanze, raggiungibili in pochi minuti.

L’abitazione si sviluppa su due livelli.
Al piano terra troviamo un accogliente soggiorno con cucina, un pratico ripostiglio e un bagno.
Al primo piano si sviluppa la zona notte composta da tre spaziose camere matrimoniali e un secondo bagno.

Adiacente all'abitazione troviamo una porzione ad uso servizi predisposta come seconda abitazione rendendola una soluzione ideale per genitori e figli o ampie famiglie.

A completare la proprietà un ampio giardino privato, perfetto per momenti di relax all’aperto con zona barbecue dedicata e una parte pavimentata per la sosta delle auto.

Mostra tutto

Nelle vicinanze

Trasporto pubblico Trasporto pubblico
San Giovanni in Persiceto
San Giovanni in Persiceto
1,6 Km
San Giovanni In Persiceto Andrea Costa
San Giovanni In Persiceto Andrea Costa
590 m
Trasporto pubblico
660 m
Scuole Scuole
Scuola Secondaria di I grado "Goffredo Mameli"
530 m
Scuola Primaria "R. Romagnoli"
860 m
Asilo Infantile e Fondazione Amici dei Bimbi
970 m
Scuola Primaria "Quaquarelli"
1,0 Km
Farmacia Farmacia
Centrale
980 m
Soldà
1,1 Km
Farmacia
1,5 Km
Ospedali Ospedali
Ospedale Santissimo Salvatore
1,1 Km
Supermercati Supermercati
Naturasì
860 m
Supermercati
930 m
Conad City S.Giovanni in Persiceto
1,3 Km
La Meridiana
1,5 Km
Coop
1,6 Km
Negozi Negozi
Tabaccheria
990 m
Maioli
1,1 Km
Panificio Cocchi & C.
1,1 Km
Square
1,2 Km
un altro mondo
1,2 Km
Bar Bar
galleria dei sensi
900 m
Follia
980 m
Bar
1,2 Km
Ristoranti Ristoranti
Ristorante Cinese Naturale
870 m
il giardinetto
940 m
Fresco
940 m
Ristorante Pizzeria Carlo's
1,0 Km
Osteria del Mirasole
1,0 Km
Mostra tutto

Caratteristiche

Rif.:
61188060
Piano:
1 di 2
Posti auto:
1
Camere da letto:
2
Arredamento:
Assente
Condizionamento:
Autonomo
Mostra tutto
Prezzo Prezzo
€ 439.000
Rata mutuo Rata mutuo
€ 2.086 / mese
Spese annue Spese annue
€ 0
Proponi il tuo prezzoProponi il tuo prezzo

Classe Energetica

E
E
E
E
E
E
E
E
E
EP globale non rinnovabile:
145.55 kW h/m² anno
EP globale rinnovabile:
145.55 kW h/m² anno
EP invernale del fabbricato:
EP estiva del fabbricato:
Anno di costruzione:
1970
Riscaldamento:
Autonomo
Tipo impianto:
A radiatori
Tipo alimentazione:
Metano

Ti interessa visionare l'immobile?

Fissa un appuntamento  Fissa un appuntamento

Richiedi informazioni

Clicca su Leggi per aprire l'informativa
* Questi campi sono obbligatori

Calcola il tuo mutuo

Semplice e senza impegno
Anticipo

( % )
Mutuo

( % )

pochi semplici passi

inserisci i tuoi dati
Questionario completato
Grazie per aver richiesto un appuntamento senza impegno con un nostro Consulente del Credito e Assicurativo.

Hai inserito correttamente tutti i dati necessari e a breve riceverai una e-mail con un link da convalidare per inviare i tuoi dati.
Affiliato
Tecnosangio Srl
Corso Italia, 86 40017 San Giovanni In Persiceto (BO)

Il nostro staff


  • Luca Zagnoni
    Affiliato

  • Enrico Chierici
    Collaboratore

  • Rossana Giardina
    Coordinatrice
Corso Italia, 86 40017 San Giovanni In Persiceto (BO)
Zona: San Giovanni in Persiceto-Budrie-Decima-S.Agata-Crevalcore
Mostra su mappa
Orari: Lunedì - Venerdì 09.00-13.00 / 15.00-20.00 Sabato 09.00/13.00
Affiliato
Tecnosangio Srl
Corso Italia, 86 40017 San Giovanni In Persiceto (BO)

2026 Tecnocasa Franchising S.p.A. - P. IVA 08365160152 - Via Monte Bianco 60/A 20089 Rozzano (MI). Ogni agenzia ha un proprio titolare ed è autonoma. Privacy policy | Policy utilizzo | Cookie policy